13615213153 17312023363

咨询电话

13615213153 17312023363

产品分类

联系我们

地址:南通市永兴开发区永康路

联系人:汪先生

电话:13615213153 17312023363

传真:0513-85403363

产品中心合成炉
当前位置:
产品名称:

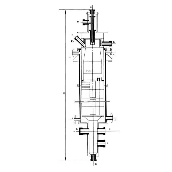
YKSL型圆块式三合一石墨盐酸合成炉

产品规格:
产品特点:

详细描述Description

 

YKSL型圆块式三合一石墨盐酸合成炉

YKSL型圆块式三合一石墨盐酸合成炉

将盐酸生产中的HCI气合成,吸收与冷却三个程序合成到一处设备上完成,是三明牌三合一合成炉的特点。

  本设备结构紧凑、体积小、生产效率高、产品酸纯度高、结构强度大、易于控制、具有较高的合成、吸收、冷却的综合容积效率和较高的吸收强度,并可大大简化生产流程,可直接获得35%以上的工业甚至试剂盐酸。
  本公司已生产1-50t/d(35%HCI)不同规格的本型合成炉,并可按用户要求设计、制造更大规格的本型合成炉。需要进一步资料时函索即寄。
  技术特性:炉内:出口酸温度<50ºC   许用压力<0.1MPa
  炉外:许用压力<0.4MPa (水冷)温度<100ºC

版权所有:南通三明石墨设备有限公司 技术支持:南通文汇网络科技有限公司 网站备案号:苏ICP备16023531号-1

13615213153 17312023363